这种独立基础参数化图形选择什么

建筑 时间:2026-05-13 22:51:10 阅读:7110

捕获.png

最佳回答

朴实的缘分

平常的小熊猫

2026-05-13 22:51:10

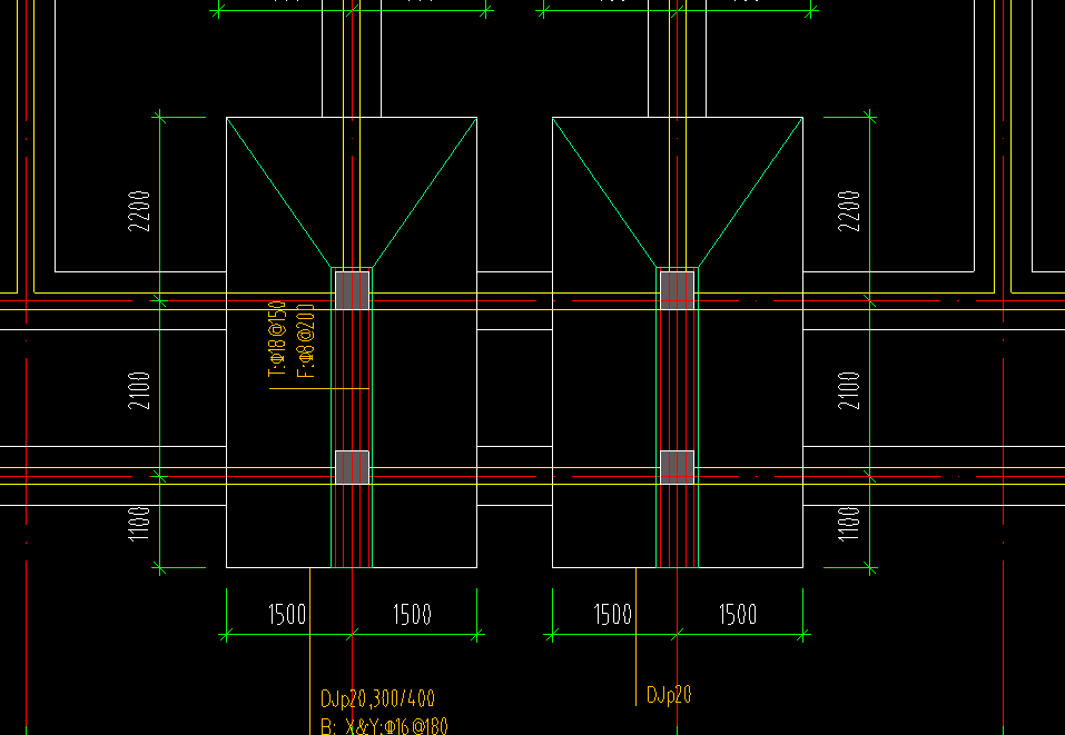
用下图的方法处理:

最新回答共有3条回答

  • 故意的未来
    回复
    2026-05-13 22:51:10

    用下图的方法处理:

  • 干净的咖啡
    回复
    2026-05-13 22:51:10

    目前软件没有这种参数基础,可以用筏板基础代替

上一篇 请问:GTJ2021识别的桩承台钢筋怎么调整方向

下一篇 补助清单应该套什么定额